Zur Navigation wechseln Zum Inhalt wechseln Zum Footer wechseln

Attraktives Grundstück mit Baugenehmigung für ein Mehrfamilienhaus (6 Wohneinheiten)

ImmoNr
2025-145
Objektart
Grundstück
Objekttyp
Wohnen
Vermarktungsart
Kauf
Ort
Dettendorf
Land
Deutschland
Grundstücksgröße
ca 1.009,00 m²
Kaufpreis
675.000,00 €
Außen-Provision
3,57 inkl. MwSt.

Zur Immobilie

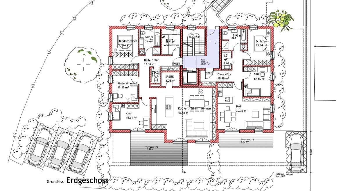
Zum Verkauf steht ein attraktives Baugrundstück in gewachsener Wohnlage von Dettendorf, Gemeinde Tuntenhausen. Für das Grundstück liegt eine gültige Baugenehmigung vor, die eine Bebauung gemäß den genehmigten Plänen für den Neubau eines modernen Mehrfamilienhauses mit 6 hochwertigen Wohneinheiten und Tiefgarage ermöglicht.

Die Grundstücksform und Größe bieten optimale Voraussetzungen für eine zeitgemäße Bebauung – eine ideale Gelegenheit für Investoren, Bauträger oder private Bauherren, die ein wertbeständiges Projekt in einer der begehrten Regionen Oberbayerns realisieren möchten.

Die bestehende Baugenehmigung schafft Planungssicherheit und verkürzt den Entwicklungsprozess erheblich.

Eckdaten (Quelle: genehmigte Bauakte)

Grundstücksfläche: ca. 1.009 m²
Lage: Am Forsthaus 1, 83104 Dettendorf
Flurnummer: 637/2
Bebauung nach §34 BauGB
Wohnfläche Mehrfamilienhaus nach WoFlV: 603,62 m²
Nutzfläche Gesamt: 70,95 m²
Nutzfläche Tiefgarage: 231,85 m²
Grundfläche EG Mehrfamilienhaus nach BauNVO: 268,33. m² (GRZ = 0,27)
Geschossfläche Mehrfamilienhaus nach BauNVO: 536,66 m² (GFZ = 0,53)
Stellplätze: 13, davon 4 Aussenstellplätze und 9 Tiefgaragenstellplätze

Nutzungsart
Wohnen

Das Grundstück befindet sich am Forsthaus 1 in Dettendorf, einem idyllischen Ortsteil der Gemeinde Tuntenhausen, eingebettet zwischen dem Alpenvorland und den wirtschaftsstarken Städten Rosenheim und München.

Die ruhige, ländliche Umgebung kombiniert naturnahes Wohnen mit hervorragender Erreichbarkeit.

– Verkehrsanbindung: Über die Bundesstraße B15 sowie die Bahnverbindung in Ostermünchen erreicht man Rosenheim, Bad Aibling und München in kurzer Zeit. Die Autobahn A8 liegt ebenfalls gut erreichbar.

– Nahversorgung & Alltag: In den umliegenden Ortsteilen befinden sich Einkaufsmöglichkeiten, Ärzte, Schulen und Kindergärten. Größere Versorgungszentren sind schnell erreichbar.

– Freizeit & Natur: Die Region bietet ein vielfältiges Angebot an Rad- und Wanderwegen sowie Nähe zu Seen und den bayerischen Alpen – ideal für Naturliebhaber und Familien.

– Standortvorteil: Die Kombination aus Ruhe, hoher Lebensqualität und guter Anbindung macht die Gemeinde Tuntenhausen zu einer besonders gefragten Wohnlage im Landkreis Rosenheim.

Bitte senden Sie uns eine Anfrage zum Exposé. Wir freuen uns darauf, das Objekt mit Ihnen zu besichtigen. Sprechen Sie uns an; wir besichtigen selbstverständlich auch am Wochenende oder an Feiertagen.
_______________________________________________________________________________________________

Alle hier gemachten Angaben sind ohne Gewähr und basieren ausschließlich auf Informationen, die uns von unserem Auftraggeber zur Verfügung gestellt wurden. Wir können keine Gewähr für die Vollständigkeit, Richtigkeit und Aktualität dieser Angaben übernehmen.
Wir bitten Sie, die in diesem Exposé enthaltenen Informationen vertraulich zu behandeln. Eine Weitergabe an Dritte ist ohne vorherige, schriftliche Zustimmung durch uns nicht zulässig.

Ihr Ansprechpartner

Wolf Müller-Kittnau

Herr Wolf Müller-Kittnau

Müller-Kittnau Immobilien

Tel.:
+49 1601514795
E-Mail:
wmk@mueller-kittnau.immobilien

Ihre Anfrage zu der Immobilie „Attraktives Grundstück mit Baugenehmigung für ein Mehrfamilienhaus (6 Wohneinheiten)“ (2025-145)

* Pflichtfelder